This developmental history of Aunt Fanny's Cabin was commissioned by the City of Smyrna in 1997. The City had compiled some information on the site, and research in local libraries, including that of the Atlanta History Center, provided additional documentation. A special emphasis was placed on documenting the life of Fanny Williams, and although that documentation was sparse, an outline of her life has emerged to reveal an individual who may have had little in common with the restaurant’s caricature.
Numerous historic photographs were located, including several interior and exterior images that were published in local papers in November and December 1941 and January 1942 that document the restaurant’s original appearance as well as a series that documents the building in the early 1950s.
Since the building was slated for demolition and had been emptied of most of its contents, finishes could be removed where necessary, and as actual demolition began, new evidence of the building’s evolution came to light. The budget did not support specialized materials documentation such as lab analysis of paint and other finishes.
Several individuals who knew the restaurant in the 1940s were helpful in sorting out the building’s history and in sharing information. Isoline Campbell McKenna’s son and daughter-in-law, Mr. and Mrs. William J. McKenna, were kind enough to show me the Campbell’s house at Argyle Farm, where they then lived, and to share their memories of the Cabin. Special thanks go to Marjorie Bowman’s granddaughter, Jane Farmer, who provided copies of numerous photographs of the restaurant in the 1950s. Also quite helpful as investigation of the building continued were Gretna Poole, widow of George “Pongo” Poole; Jessie Redding, who began working at the restaurant in the 1940s; and Lee Garner, who furnished the first appliances for the restaurant and who also painted the first signs for the restaurant. And special thanks to Mayor Max Bacon and City Manager Howard Smith—without their interest in the city’s history, Aunt Fanny’s Cabin would be nothing but a memory.
For over fifty years, Aunt Fanny’s Cabin was a landmark in Cobb County and, for many of those years, was one of the best-known restaurants in the Atlanta area. [1] Opened in December 1941 as an antique and country store by Atlanta socialite Isoline Orme Campbell (1893–1978), it quickly evolved into a popular restaurant which specialized in Southern cooking and a sort of faux rustic-rural atmosphere that became commonplace in area restaurants after World War II. The casual racism that characterized much of the restaurant’s décor and operation, which included African-American waiters with sign boards hung around their necks to announce the menu, re-assured the almost exclusively white clientele that all was still right with the world even as the shackles of segregation were beginning to weaken all across the South. It became the model for several local imitators, including Mammy’s Shanty on Peachtree Street and Johnny Reb’s Dixieland on U.S. 41 at Akers Mill Road and three other area locations; all were hugely popular in the third quarter of the twentieth century.
|
Figure 1. Promotional postcard for Aunt Fanny's Cabin, c. 1942. (City of Smyrna) |
Figure 2. Post card showing the steel-truss bridge for the Marietta Road and the Interurban Streetcar line. (Library of Congress) |
Figure 3. Post card showing the steel-truss bridge for the Marietta Road and the Interurban Streetcar line. (Library of Congress) |
The life of the restaurant’s namesake, Fanny Williams (1868–1949), has been generally obscured by the myth of “Aunt Fanny.” Although she worked most of her life for the Campbells, Williams also had significant accomplishments of her own, many of them through her association with Wheat Street Baptist Church, one of the more activist of Atlanta’s several African-American churches. In Cobb County, too, she made her mark and endured the displeasure of the Ku Klux Klan over her activities, which included being one of the major fundraisers for Marietta’s “Negro Hospital,” which broke ground in 1947.
Beyond that, the origins of the Cabin and of the Campbell’s Argyle Farm mark some of the earliest suburban development in Cobb County. In the late nineteenth century, many communities around Atlanta, including Vinings just southeast of the Cabin, benefitted from the railroads’ regular service. The railroads eventually eliminated commuter service, but after 1905, the Atlanta Interurban Line’s electric streetcar line between Atlanta and Marietta, which ran a few hundred yards southwest of the Cabin, continued to make it easy for wealthier Atlantans to maintain summer homes outside the increasingly crowded city. As transportation improved in the twentieth century, especially after automobile travel and good roads became more widespread in the 1920s and 1930s, many of these homes, including Argyle Farm, became year-round residences.
As automobiles became more and more common in the years before World War I, a movement for good roads led to the creation of such national efforts as the Dixie Highway Association. Starting in 1915, they marked out a route from Michigan to Florida, which followed the Atlanta and Paces Ferry Roads from Marietta to Atlanta. In 1920, the highway was paved from Marietta to Smyrna and three years later was paved from Smyrna to the river. By 1929 the Dixie Hwy had been paved all the way through Georgia and designated U.S. Highway 41.
By World War II, construction of the state’s first four-lane highway had begun barely a mile east of Argyle Farm, and Marietta had started construction of a new airfield. With these advantages in transportation and the area’s proximity to Atlanta, Marietta and Cobb County were successful in luring the Bell Aircraft Corporation to construct their new aircraft-assembly plant in Cobb County. In operation by 1943, the plant produced over 600 of the new B-29 bombers and employed over 28,000 people by the time it ceased operation shortly after the end of World War II. The creation of Dobbins Air Force Base in 1948 and Lockheed’s resurrection of the old bomber plant in 1951 helped spur continued development that was soon overtaken by the explosive growth of metropolitan Atlanta in the last half of the twentieth century. Through several owners until it closed in 1994, Aunt Fanny’s Cabin continued to grow and prosper along with the surrounding area.
The Campbells
Figure 4. The Georgia State Capitol in Milledgeville. (Historic American Buildings Survey) |
Figure 5. Campbell Coal Company truck. (UT HIstory) |
Isoline Campbell’s father, Richard Orme Campbell (1860–1912), was born in Milledgeville, Georgia, one of three sons of John Bulow Campbell Sr. (1829–1885), a wealthy planter and executive secretary to Gov. Joseph E. Brown from 1857 to 1865. Richard’s mother, Virginia Orme Campbell (1834–1904), was the daughter of Richard M. Orme (1797–1869), editor of the Southern Recorder, one of the state’s most influential newspapers in the early nineteenth century. Their other children were David Crowell Campbell (1862–1941) and John Bulow Campbell Jr. (1870–1940).
When the state capital was relocated from Milledgeville to Atlanta in 1868, the Campbell family moved, too, and it was there that Orme, as Richard Orme Campbell was known, established the Campbell Coal Company in 1884. He soon built it into the South’s largest coal company, owning and operating several mines in East Tennessee and Kentucky. In the early 1900s he even built a company town some 90 miles west of Knoxville and named it Isoline. The mine was abandoned in the 1920s, and now the Isoline Baptist Church and Campbell Junction are the only reminders that the town itself ever existed.
Orme’s youngest brother, John Bulow Campbell Jr., who also went by his middle name, joined the company in the 1890s and took over as the company’s president when Orme Campbell died in 1912. When he himself died in 1940, he left $6,000,000 in assets, the bulk of his estate, to the J. Bulow Campbell Foundation, a charitable foundation famous for anonymous giving. The foundation today is the second largest in the state, seventh among the top 50 U.S. foundations, and among the largest independent foundations in the world with assets now over $385,000,000.
In December 1890, Orme Campbell paid a few hundred dollars for 80 acres in Land Lots 738 and 739 in southeastern Cobb a mile or so southeast of Smyrna. These land lots would became the core of the country retreat that the family called “Argyle Farm.” Adjoining the Western and Atlantic Rail Road, the property was easily accessible by train from Atlanta, with family, visitors and servants able to debark at a “whistle stop” nearby.
Country estates of the period typically tried to be more or less income producing, and farm products such as vegetables, milk, and eggs be easily shipped back to the dinner table in Atlanta. Mostly, however, it was a retreat from the summer heat in the city. According to the 1890 deed, Campbell had already improved the property by “fencing and building several small houses thereon.” One of these “small houses” must have been what became Aunt Fanny’s Cabin. [2]
It is not certain who occupied these houses in the early years but they were probably tenant farmers and household servants for the Campbells. The Cabin itself may have been home to a number of people; but according to Richard Campbell’s grandson William J. McKenna Jr. Fanny Williams never lived there herself. According to him, the family of James, Robert and Lula Bates lived in the Cabin in the early twentieth century, with Fanny herself living in a small house between there Argyle Farm’s main house.
In April 1892, Orme Campbell married Harriet Bunn Wimberly (1871–1922) at Inglehurst, her family’s home in Twiggs County, Georgia. They returned to Atlanta, where their first child, Isoline, was born in November 1893; their only other child was a son, Richard Jr (1912–2004). By 1900, they were living at 15 Ponce de Leon Avenue, just east of Peachtree Street but later built a house at 865 (now 1055) Peachtree Street between Eleventh and Twelfth streets.
|
Figure 6. Detail from Poe's map of southern Cobb County from Marietta to the river, annotated with an arrow to locate the intersection of the road from Powers Ferry to Ruff's Mill, part of which is now Campbell Road with the Western & Atlantic Railroad and the Marietta-Atlanta Road. (Geography and Map Division, Library of Congress) |
|
Figure 7. Google Earth map showing Smyrna and vicinity of the Campbell's Argyle Farm. The hatched area indicates the two land lots purchased by Richard Orme Campbell in 1890. |
Figure 8. A view of Argyll Farm, c. 1900, showing Campbell Road crossing of the Western & Atlantic Railroad. Note the Argyle sign, landing, and steps at the railroad. (Smyrna Historical Society) |
Isoline Orme Campbell
Isoline Campbell grew up in Atlanta in a family that was part of the city’s elite. She attended the renowned Lucy Cobb Institute in Athens, Georgia, in the early 1900s. In September 1913, she embarked with friends on a months-long grand tour of Europe; they were in Munich in July 1914 when the assassination of Archduke Ferdinand set World War I in motion. They left immediately for Dresden but were confined to their hotel rooms while their applications for emergency passports were processed. During that time Isoline photographed a demonstration from her hotel balcony and was promptly detained as a possible spy. In September, she boarded the RMS Baltic in Liverpool and returned to New York.
Back in Atlanta, she spearheaded a campaign to organize a chapter of the Junior League, the renowned women’s service organization founded in New York in 1901. “It seemed absurd,” she said later, “that we should be only thinking of the gay social whirl . . . while the memories were still fresh in my mind of the harrowing scenes I had witnessed as I came through France, Belgium, and England.” [3]
In October 1916, the Atlanta Junior League was chartered with forty-five charter members, all debutantes from the 1914, 1915, and 1916 seasons. Isoline Campbell was the League’s first president and is generally acknowledged to have been “the guiding light” of the organization.
|
Figure 9. Isoline Campbell, c. 1915. (Atlanta Junior League) |
Their first fundraiser was a Butterfly Ball held in December 1916, with a motto that reflected their sense of noblesse oblige: "We are girls, working for girls who have not the same joys and comforts we have." The League's formal mission statement gave as its purpose "doing some good for the needy of Atlanta and fostering among the members interest in the community's social, economic and educational conditions." It remains one of the city's premiere service organizations today.
In 1918, Isoline Campbell and other League members went back to Europe to assist in the war effort working with the YMCA Canteen in France and England. Her mother, who was still on the board of Campbell Coal, joined her, "for business" according to her passport. With war’s end she returned to Atlanta to live with her widowed mother in their old house on Peachtree St.
In 1922, Isoline Campbell married Maj. William Jay McKenna, owner of a Boston-based paint company. Little of their life together has been documented beyond their residence in the late 1920s and early 1930s at 187 Beacon Street in Boston. They also had houses in Hyannisport, Massachusetts, and Miami, Florida, as well. They had three children—William Jr., Harriet, and Campbell. The marriage did not last, however, and by 1936, Isoline Campbell McKenna was divorced and back in Atlanta, where she remained active in civic and philanthropic activities.
|
Figure 10. Census schedule, 1930, showing the McKenna household on Beacon St. in Boston's Back Bay. (Ancestry.com) |
In the late 1930s, Atlanta laid the foundations for its post-war boom, most especially WPA-funded improvements to Mayor Hartsfield's pet project, the municipal airport. In addition US 41, the old Dixie Highway that had been bringing traffic through northwest Georgia since 1916, was undergoing major improvements that included construction of the state's first "dualized highway", i.e. 4-lane, construction of Northside Drive and what is now Cobb Parkway, which included a four-lane bridge over the Chattahoochee River that was completed in 1938. Finally, in June 1941, ground was broken on a 563-acre site for a new airfield that was meant to take some of the traffic from Atlanta's already overburdened airport. Named Rickenbacker Field, in honor of Eddie Rickenbacker, the ace pilot and Medal of Honor winner in WWI, it was located adjacent to the new US 41 "superhighway" just north of Smyrna.
Aunt Fanny's Cabin
It is not clear what precipitated Isoline McKenna’s decision to start her own business, nor her inspiration to call it "Aunt Fanny's Cabin." Margaret Mitchell's Gone With the Wind won a Pulitzer Prize in 1936 and the Atlanta premier of the Selznick movie production in December 1939 was a major event that included the Junior League's "spectacular Old South ball" in the City Auditorium. The idea of an "old timey" cabin was a ripe one on the eve of World War II.
|
Figure 11. Story announcinng the opening of Aunt Fanny's Cabin in the Atlanta Constitution on 27 November 1941. |
|
Figure 12. View of rear of large chimney that was built during World War II. It was moved intact to the new site. (Collection of Jane Farmer) |
|
Figure 13. Sign advertising Aunt Fanny’s Cabin, early 1942, located at the intersection of Campbell Road and the Atlanta Road a mile or so south of Smyrna. (City of Smyrna) |
|
Figure 14. Census schedule, 1930, showing the McKenna household on Beacon St. in Boston's Back Bay. (Ancestry.com) |
|
Figure 15. View of part of early additions to the restaurant. (Collection of Jane Farmer) |
|
Figure 16. Atlanta Journal undated photograph of Harvey Hester, center, and Margaret Bowman, to his left, at a birthday party in the semi-circular dining room at the rear of the cabin. (Collection of Jane Farmer) |
|
Figure 17. A report on Aunt Fnany's cabin from the Washington Post in August 1982. |
Figure 18. Postcard for Mammy's Shanty, ca. 1950. |
To house her venture, McKenna remodeled one of her father's old tenant houses on Campbell Road, painted it white with red front doors and "defense blue" shutters, and stocked it with "her collection of antiques, conserves, and all kinds of farm products," much of which she claimed were from tenants on her "2,000 acre" farm. Part of the reason for the store, according to a report in the Atlanta Constitution, was to provide a market for her tenants’ produce, which included some of Fanny's "delicious jellies, preserves and canned fruits." It was promised that Fanny's "famous vegetable soup, goulash, and gingerbread will be served all during the winter at a nominal cost." [4]
An avid collector, McKenna also stocked the house with all sorts of antiques, all for sale, and displayed in faux rustic-rural atmosphere that became commonplace in area restaurants after World War II and continues today with the popular Cracker Barrel restaurants, the first of which opened in 1969.
Aunt Fanny's Cabin opened on Wednesday, 3 December 1941. The following Sunday, the Japanese attacked Pearl Harbor, dragging the United States into World War II.
The outbreak of war did not prevent Mrs. McKenna from continuing with her venture; to the contrary, it was probably the war that turned her somewhat out-of-the-way antique store into a profitable enterprise. The fame of the casual meals that were offered spread quickly and proved far more popular than the antique store.
In March 1942, ground was broken for the huge Bell Aircraft Company plant to be built less than three miles north of Argyle Farm. A year later, over 1,000 employees were at work building B-29 bombers, and employment continued to rise until Bell Bomber employed over 28,000 in February 1945, making it the state's largest war-time employer.
Executives from the Bell Bomber plant, as it was popularly known, were among the first to patronize Aunt Fanny's on a regular basis, and they urged Mrs. McKenna to expand beyond the cramped quarters of the original cabin. War rationing made it impossible to get building materials, but a truck load of lumber appeared one day, reportedly from the Bell Bomber plant. In short order, a semi-circular, brick-floored terrace enclosed with windows was constructed off the rear of the cabin, which more than doubled the available table space. There would be other alterations and additions during the war, and many more after that.
By the end of World War II, "Aunt Fanny's Cabin" was known around the world. According to a newspaper account in 1945, "her guest book [included] records of visitors from San Francisco, Spokane, Denver, Chicago, Philadelphia, Honolulu, and London, all in the same week." Mrs. McKenna was quoted as saying that the Cabin’s popularity with the public was “purely an accident but that it has been loads of fun." She had also clearly already begun the myth that surrounded the Cabin in subsequent years, with the newspaper reporter believing that the big fireplace and brick floors at the rear of the cabin were of ancient origins when, in fact, Mrs. McKenna had them built only two or three years earlier. Her perfect "Picture of the Old South" at Aunt Fanny's Cabin was well on its way to being legend.
Unfortunately, Mrs. McKenna was far more creative than she was a good business woman and closure of the Bell Bomber plant at the end of the war was a blow to her business. By 1947, she found herself with major tax problems. She had also re-married and as Mrs. Max Don Howell made the decision to lease the business. In 1954, she sold her interest in the restaurant and retired. She died in Atlanta in January 1978.
The new lessees, Marjorie Bowman and Harvey Hester, were much more business-oriented. Bowman had recently managed Mammy's Shanty, a popular Atlanta restaurant on Peachtree Street that opened in 1944 in more-or-less direct imitation of Aunt Fanny's Cabin. Hester's abilities as a promoter were legendary, and under their ownership after 1954, the restaurant remained hugely successful. Bowman and Hester sold the restaurant in 1968, but the enterprise continued to grow and expand, with major additions made to the complex as late as the 1980s.
By then, the restaurant was a huge operation, attracting 250,000 visitors a year; but the Old South shtick was growing tired in the opinion of some. C. Miles Smith, a black local talk-show host known on the radio as "Ralph from Ben Hill," said such restaurants as Aunt Fanny's Cabin "placate the Old South bigot mentality" and are highly offensive to blacks. "It's pitiful. . . . The overt thing of the little black menu boys and nannies {waitresses} is very insulting to black people," Smith said. "I wouldn't take my kids there even for a history lesson. I'd rather show them in books than have them see it in reality."[4]
George Pongo Poole, who with his wife managed the restaurant from 1968 to 1988, said he "booted out obnoxious rednecks" who occasionally harassed the staff. State Sen. Julian Bond noted that while he would never go to the restaurant, some younger African Americans who had not lived through the worst of the civil rights struggle, might actually find the Old South plantation theme "cute" One of the African American waitresses, too, spoke for most of the staff who said, "we love it ─ it's not a put-down for us."
Indeed, some of the competition in the 1950s and 1960s could make Aunt Fanny's look positively genteel. One of those was Mammy's Shanty, which opened on Peachtree Street in 1944 in more-or-less direct imitation of Aunt Fanny's Cabin. With its Pickaninny Lounge, the restaurant was hugely popular and some of its racist promotional materials still show up in collections of so-called "Negrobilia."
Southern-themed restaurants continued opening during the Civil Rights era. Johnny Reb's Dixieland, e.g., opened four locations around Atlanta in the late 1950s, including one on U. S. 41 at Akers Mill Road. One of the highlights of a meal there was the noted African-American musician Graham Jackson playing "Battle of Atlanta" on the organ.
Aunt Fanny’s Cabin closed in 1992, a victim of too much competition from chains like Cracker Barrel and its more-politically correct interpretation of the Southern-cooking genre. In addition, the potential of the property for multi-family residential development greatly increased its value. In 1996, it was sold for redevelopment and the restaurant slated for demolition.
Because of its landmark status in the area, the City of Smyrna, which was then in the early stages of almost total redevelopment of its downtown a mile or so to the northwest, began to explore preservation options. Soon a plan was hatched to relocate Aunt Fanny’s cabin to the site of the long-lost railroad depot for use as a welcome center. The author was contracted in 1997 to investigate and document the building and to propose a plan for its reconstruction and restoration on the new site.
The rambling, disjointed nature of the building at that time made it immediately clear that only part of the complex could be preserved, and after a thorough investigation of the building, a plan was proposed for moving the oldest parts of the building for reconstruction and restoration as the restaurant existed at the end of World War II.[5]
In 1999, most of the building that existed at that time was demolished. Only the original, two-room, nineteenth-century house with its front porch and the “girl’s room” that was added during World War II were moved intact. What could be salvaged from the two rear rooms that were added to the rear of the original cabin in the early twentieth century and the first tier of the semi-circular dining room, constructed during World War II, were dismantled and reconstructed at the new location.
Figure 19. Fanny Williams, 1941. |
|
Figure 20. Schedule from 1930 Federal census of Fulton County showing Isoline McKenna's bachelor brother, R. O. Campbell Jr., and his servants, one of whom was Fanny Williams. |
|
Figure 21. Undated photograph of Fanny Williams, probably at Argyle Farm. (Collection of William J. McKenna Jr. |
Figure 22. Wheat Street Baptist Church, Auburn Avenue, Atlanta, Georgia. (wheatstreetbaptist.org) |
Fanny Williams
The caricature that was built around Fanny Williams (c. 1868–1949) obscured the reality of her life. Her obituaries suggest that she was born into slavery, but the newspaper account of the restaurant’s opening in 1941 stated that she was “past 70,” an age supported by the 1930 Federal census, which states that she was born in Georgia around 1868, perhaps near Macon.
She was reported to have worked for four generations of the Campbell family, but that, too, appears to be part of the myth of “Aunt Fanny” that was created by the restaurant’s owners in the 1940s and 1950s. The Campbell family has been located in every census from 1860 to 1930, and only in the last is Fanny Williams shown as part of the household. Other servants are shown as part of the household, but not Fanny Williams.
She was married at some point, but nothing is known of her husband except that she was enumerated as a widow in the federal cemsus in 1930. There is no record of any children.
Besides her domestic work for the Campbells, Fanny was "an active church and civic worker," a long-time member of Wheat Street Baptist Church, founded in 1870 on Auburn Avenue in downtown Atlanta, The congregation was known for civic activism under its pastors Rev. P. J. Bryant in the 1920s and early 1930s and the late Rev. William Holmes Borders after 1936. She “helped build" the church and was noted for her ability to raise money for a variety of church and hospital funds. One of these was the fundraising campaign to build the present Wheat Street Baptist Church, which was completed in 1939.
The "hospital funds" included the "Negro Hospital" in Marietta, for which she helped break ground in 1947. The exact extent of all of her activities is not known but, according to some, those activities were enough to draw the ire of the Ku Klux Klan, which at one point attempted to burn a cross in her front yard. [6]
By the time Isoline Campbell McKenna opened Aunt Fanny's Cabin, Fanny herself was in her early seventies, but the Atlanta Constitution in reporting the restaurant’s opening in 1941, noted that
her age does not deter her from bustling around the kitchen and popping corn in the fireplace. She daily indulges in Coca-Cola, the soft drink for which Atlanta is internationally known. She always wears a printed calico dress, a big white apron, and a white bandana is wrapped around her head.[7]
Within a few years, her obituary would relate that Campbell descendants recalled “being bounced on her knee and listening wide-eyed to her tales of the War Between the States.” How willingly Williams participated in that charade is uncertain.
Fanny Williams continued to live at Argyle Farm after Isoline married Max Don Howell, and she died there of a heart attack on 5 November 1949. Her funeral was held at Wheat Street Baptist Church in Atlanta, with Reverend Borders officiating. Burial was in an unmarked grave at Southview Cemetery in southeast Atlanta. The day she was buried, November 8, the Atlanta Journal published a two-column obituary that was headlined "Aunt Fanny Tendered Loving Last Tribute." It noted that "her cabin was famous, after the war, as an eating place, and her personality was famous, too. Persons throughout the South visited her." Her closest surviving relative was her older sister, Sally Childs of Macon. [8]
The Cabin
The restaurant itself was a series of buildings and structures that were added to the original nineteenth-century structure in stages beginning as early as the first quarter of the twentieth century. Sorting out the evolution of the then-abandoned building in 1997 was somewhat difficult because of the loss of the kitchen, which was among the oldest parts of the building, to fire on New Year’s Eve in 1963. Several historic photographs of the restaurant have been located, including three from March 1946, and several from the 1960s fire and cleanup. Finally, a number of clues to the building’s evolution came to light as the building was being dismantled in 1998.
|
Figure 23. View of Aunt Fanny's Cabin in 1946. (Atlanta History Center) |
Within ten years of Isoline Campbell McKenna having opened her restaurant, Fanny Williams had been transformed into an ancient person who could regale visitors with stories of the Civil War, which had ended several years before her actual birth. At the same time, the Cabin itself was aging rapidly and, within a few years, the restaurant’s owners were reporting it as having been built in 1840. A quick look at the building’s framing disproves that dating but does corroborate the actual construction date that must have been around the time that Isoline’s father bought the property in 1890. In the subsequent alterations and additions one can trace the building’s history through most of the twentieth century.
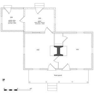
Argyle Farm Tenant House
This description of the building dates to 1998. Numerous changes to the building were made when it was moved. In addition, not all of the later additions to the building are documented here.
The original “cabin” was a two-room, wood-framed house with a central chimney. Except for substantial parts of the rear walls of both rooms, much of the original structure (Rooms 101 and 102) has survived, including parts of its original finishes. This type of house was quite common in Georgia and the South in the late nineteenth century, especially for farm tenant houses, but few have survived the growth of Atlanta and its suburbs after World War II. They varied somewhat in overall size, with the Cabin’s dimensions of 14½’ by 26½’ perhaps a little smaller than was typical. But nearly all of them, including this one, were cheaply built and roughly finished.
Rough-sawn, board-and-batten siding was a typical finish for the exterior of these houses. Although the existing, unpainted, board-and-batten siding on the exterior of Aunt Fanny’s dates to the late twentieth century, it recreates the original siding and was laid over the original boards after removal of the original battens. These houses were often left unpainted, but Orme Campbell, the gentleman farmer, probably painted the houses he built at Argyle Farm in 1890. Paint build-up on the exterior surfaces that were enclosed in 1941 suggest that the Cabin had been painted a number of times over the preceding fifty years.
The porch rafters and the corner post at the north end of the porch are probably original. The remainder of the posts, the balustrades, the floor joists and the flooring are modern. The original porch did not have balustrades or railings. All of the original window and door openings on the cabin have been altered except for the four openings on the front of the house. The original windows in the Cabin had double-hung, two-light window sash of a type that was often used in late-nineteenth century buildings. Only the upper sash remain in place in the front windows of the Cabin. While the front door openings themselves are original, the doors, which probably resembled the door that survives between the two front rooms of the Cabin, were replaced in 1941.
The interior walls and ceilings of the original two rooms at the Cabin were originally finished with beaded, tongue-and-groove pine boards, about 3¼” wide, most of which remains in place in the building. The original flooring used 5” to 6” wide tongue-and-groove boards. One of these remains under the partition to the right of the fireplace in the north room (101) and fragments remain of others around the perimeter of the building.
The double brick fireplaces and mantels between the two original rooms are also original as are most of the wall and ceiling boards. Most of the rear wall of the Cabin, which probably included a door opening from both rooms, was removed during the course of various expansions of the building. The existing wide-board oak flooring is a replacement of the original board floors in the last quarter of the twentieth century.
Early Additions
A shed-roofed addition (103), typical for these houses, was added to the rear of the house sometime after its original construction. It was initially thought that the existing space across the width of the rear of the Cabin was divided into two rooms, the change in ceiling finishes in the existing room marking that original division of the space. However, only the southern part (103) of the existing space predates 1941. Removal of the ceiling on the north side of the header that still marks the north wall of the original addition revealed the original unboxed eaves of the pre-1941 addition. Ghosts of the original board-and-batten siding were outlined in the paint on those eaves.
|
Figure 24. Floor plan of Cabin as it existed prior to 1941. (Drawing by author) |
Room 103: The walls, ceilings, and floors of 103, which are visible in the 1942 photographs, were finished in plain, tongue-and-groove boards, with no beading, approximately 3¼” wide. The exterior was finished in board-and-batten siding similar to that on the original Cabin itself. The interior and exterior finishes remained in place on the north wall of 103 as did the original ceiling boards.
Room 104: The shed-roofed addition (104) off the south end of 103, which is visible in the 1941 photograph of the Cabin, was destroyed in the 1964 fire but it, too, most likely existed prior to 1941. Its exact dimensions are not known, although it was most likely quite small. Lee Garner, who furnished the original stove and refrigerator for the restaurant kitchen in 1941, was interviewed but could only state that it was “small.” The profile of the shed roof suggests that it did not extend beyond the rear wall of 103 and its slope suggests that it did not extend much further than six to eight feet to the south. The door opening between 103 and 104 may have been created out of a window opening on the south side of 103, but there was probably a back door on the west side, and there may have been a window on the south side. There was never a window opening on the east wall of 104.
Aunt Fanny’s Cabin, 1941
Mrs. McKenna made significant changes to the Cabin before opening it as a restaurant. With her friend Nan DuBignon, they “supervised the jobs of knocking down walls, building additions, painting, papering, cleaning--you know, all the things that needed to be done.” If the early newspaper accounts are correct, it would appear that she renovated and redecorated the house completely and probably had to add plumbing and wiring at that time as well.
|
Figure 25. Floor plan of Cabin as it existed after the 1941 remodeling. (Drawing by author) |
One of the walls that McKenna “knocked down” in 1941 was the wall between the two south rooms of the original house (102 and 103), creating what she called the “living room.” At the rear of this new room, she added a pair of french doors opened onto the back yard, where she may have also had some sort of terrace. Off the southwest side of the living room, she overhauled the shed-roofed kitchen that had been added off the south end of 103 sometime before 1941. It was separated from the living room by a Dutch door through which food could be served over a small counter top on the lower half of the door.
McKenna replaced what was probably a single window on the south wall of the living room with the existing triple windows on that wall. She used six-light, double-hung window sash in those openings and used the same kind of sash to replace the lower sash of the old 2/2 window at the front of the Cabin. Across the triple windows and across the front window, she installed the tiers of shelves that remain there today and on which she could display all sorts of glassware that was for sale. She also added the built-in china cupboard to the left of the living room fireplace.
The new addition mentioned in 1941 was Room 105, which was the original “dining room” for the establishment. With door openings to 103 and 101, this dining room featured windows that appear to have run most of the width of the rear and end walls of the room. A window was closed and the battens were removed from what had been the rear outside wall of 101 and the walls and ceiling of the new room were finished with ¼” plywood trimmed with ¾” quarter-round at ceiling and floor. The room was floored with 3½” tongue-and-grooved boards.
Few changes appear to have been made to the “bedroom” (101) by Mrs. McKenna. She did replace the deteriorated two-light lower sash in the front window with the existing six-light sash, visible in early photographs and which does not quite fit the opening. Shelves were added across this window, too, although they may have been installed sometime after those at the living room windows. As noted above, a rear window in this room was closed with construction of 105.
Mrs. McKenna kept the original board-and-batten siding on the exterior of the house, but no doubt gave it a fresh coat of white paint. The old six-panel front doors were painted bright red, and she added louvered shutters, which the house almost certainly did not have originally, and painted them blue.
Mrs. McKenna’s decorating of the house in 1941 was reported in some detail in the Atlanta Constitution report on the restaurant's opening:
The cabin was decorated under the supervision of Mrs. McKenna and reflects her original ideas. Two bright red doors open on the front porch into the [house] and defense blue blinds hang at the windows of the cabin. Maple cupboards are set against the blue walls in the living room, and yellow-flowered chintz curtains the windows. Glass shelves are filled with antique glassware and priceless bric-a-brac. Ruby glass lamps adorn the maple tables and a log fire burns in the old-fashioned fireplace.
Yellow and purple hues predominate in the bedroom designated as Miss Nan du Bignon’s room. . . . Maple chairs, a buffet, and table dress up the dining room, where the walls are papered in antebellum scenes. Green paint trims the windows and doors, and maple cabinet shelves hold antique china dishes. Historic Kennesaw Mountain lifts its majestic head in the distance and is glimpsed through the dining room windows.
Luscious red strawberries with blue leaves have been painted by Mrs. Sam Slicer on the yellow walls of the kitchen. The strawberry motif is repeated on the glazed blue chintz curtains, and Victory blue linoleum covers the floor. a white enameled frigidaire and stove are ready for usage, and yellow shelves trimmed with blue paint add an effective note to the walls.
Part of the dining room wall paper mentioned in the article survives under later wall coverings and there is much surviving evidence of the original paint colors. Mrs. Slicer was a well-known local artist, Junior League member and friend of Mrs. McKenna, and according to one source, some of her decoration, which was not limited to the strawberries on the kitchen walls, survived frequent repainting of the rooms until relatively recently.
On the front porch, Mrs. McKenna placed an antique spinning wheel and across the front porch hung a sign nearly ten feet long that proclaimed the building “Aunt Fanny’s Cabin.” Across the front of the yard was a white board fence, much like that which still survives along the McKenna property across the road from the Cabin. So was born “Aunt Fanny’s Cabin.”
The Cabin during World War II
Between January 1942 and March 1946, the Cabin underwent at least two significant expansions. The first of these probably occurred in 1942 or 1943, when Mrs. McKenna added the first semi-circular dining room, which at that time did not include the large brick fireplace. According to several sources, it was put up rather hurriedly in response to the potential patronage of “executives” at the Bell Bomber plant, which may also have been the source of some of the materials with which it was constructed.
The restaurant appears to have been quite popular during the War, which precipitated other changes as its clientele grew, including painting the front doors bright red and the shutters blue, which gave the Cabin an appropriately patriotic air. A newspaper account from August 1945 mentions the brick floor of the dining room and that “the huge field stone fireplace was restored to its original importance.” While the reporter totally misconstrued the fireplace (it is brick and was probably built shortly before the end of World War II), that account does indicate that the restaurant had already been expanded to include the large fireplace and, therefore, the second tier of the semi-circular dining room.
Although photographs do not show it prior to about 1950, the private dining room or “blue room” must have been in place by 1946 since the structure of the second tier of the circular dining room appears to have been predicated on its existence. Sided with shiplap siding, this end-gabled structure included an outside entrance on the north side of the building, windows on either side of the fire place on the south side, presumably windows at the west end as well, and two doors connecting to the kitchen at the east end. However, the existing corner fire place at the south end of the second tier of the dining room was probably not added until Hester and Bowman expanded the dining room a third time in the late 1940s to enclose the entrance to the private dining room.
The 1946 photographs also document the presence of the “Girl’s Room” off 101 at the north end of the Cabin. Since no one remembers other restrooms in the building, it might be assumed that the “Girl’s Room” here and the “Boy’s Room” off the east side of 104 were added during World War II, perhaps along with the second expansion of the terrace room and construction of the big brick fireplace.
The evolution of the kitchen is less clear since all of it was destroyed in the 1963 fire. Part of the original kitchen (104) can be documented by the 1941 photograph of the Cabin. Examination of the original print at the Atlanta History Center, which includes some information cropped from the newspaper copy, shows the kitchen to have extended approximately eight feet from the south end of the house and to be windowless on the east (front) side, shed-roofed with a rear slope, and sided with lap siding. This space eventually became a corridor between the Cabin and the men’s restroom, the expanded kitchen, and the blue room.
McKenna must have constructed a larger kitchen as soon as the potential for the restaurant became clear, probably as early as 1943, since the original kitchen in 104 would have been totally inadequate for any but the smallest scale cooking. The only documentation for it is a photograph of its east side in 1950, and photographs taken after it burned in 1964.
The dimensions of the 1940s kitchen can only be estimated, but it appears to have been a frame building with lap siding and a shallowly-gabled roof. It had a latticed porch along the south side, where a lot of the kitchen’s preparatory work was conducted. Its length east to west appears to have determined the location of the blue room and of the terminus of the semi-circular dining rooms as they were expanded. Brick floored, the kitchen was divided into two main areas, one for cooking and one for washing.
|
Figure 28. Reconstructed north elevation of Aunt Fanny's Cabin as it existed at the end of World War II. (Drawing by author) |
Figure 29. Reconstructed south elevation of Aunt Fanny's Cabin as it existed at the end of World War II. (Drawing by author) |
Figure 30. Front and south end of Aunt Fanny's Cabin on its original site in 1997. (Photograph by author) |
Figure 31. North end of Cabin on its original site in 1997. (Photograph by author) |
|
Figure 32. View of Cabin on its original site in 1997, after the semicircular dining room had been dismantled. (Photograph by author) |
Figure 33. View of south end of Cabin on its original site in 1997 as it was being readied to be moved. (Photograph by author) |
|
Figure 34. The core of the Cabin as it was being moved from its original site in 1997. (Photograph by author) |
|
Figure 35. View of Aunt Fanny's Cabin, c. 1960. The reverse of the card: "AUNT FANNY SAYS: Save your Confederate money folks/The South will rise again!" (author's collection) |
![]()
Notes
1. See Atlanta food critic Cliff Bostock’s comments on the restaurant, “Southern Yarn: Tracing Atlanta's march to culinary freedom," Creative Loafing, 4 June 2004.
2. Cobb County, GA, Records of Deeds and Mortgages, O- 206-207 documents the original purchase in 1890. V-365, P-434, X-168, and Y-164 document additional Campbell land transactions around Argyle Farm. The character of the structure and finish materials of the cabin are consistent with a constrution date around that time.
3. Janet Martin. “The End of an Era,” Peachtree Papers, magazine of the Junior League of Atlanta, Inc., April 1978, 14-15.
6. Joel W. Smith, “Break Land for Hospital in Marietta,” undated newspaper article.
7. Stafford, The Atlanta Constitution 27, November 1941.
8. John Keasler, “Aunt Fanny Tendered Loving Last Tribute,” The Atlanta Journal, 8 November 1949. Obituaries also appeared in the Atlanta Constitution and the Atlanta Daily World.
![]()
Sources of Information
Cobb County, Georgia, Superior Court, Deeds and Mortgages.
Keasler, John. “Aunt Fanny Tendered Loving Last Tribute,” The Atlanta Journal, November 8, 1949.
Galloway, Jim. “Tribute to a Huckster: Aunt Fanny’s Cabin,” The Atlanta Journal/Constitution, 18 June 1998.
Georgia Power Company, “Aunt Fanny’s Cabin, of Smyrna, Offers Foods Cooked in True Southern Style,” Round the Home, Vol. XVI, #3, March 1946.
Martin, Janet. “The End of an Era,” Peachtree Papers, magazine of the Junior League of Atlanta, Inc., April 1978, pp. 14-15.
McKinley, Lenna. “Picture of the Old South Re-Created at Argyle by Atlanta Socialite,” The Atlanta Journal, August 16, 1945
McQueen, Tucker. “Historic restaurant likely to be moved,” The Atlanta Journal/Constitution, July 1997.
______________. “Aunt Fanny’s Cabin: Myth of the Old South,” The Atlanta Journal/Constitution, 24 August 1997.
Minter, Jim. “Hester Made Life Live,” The Atlanta Journal, undated.
Smith, Joel W., “Break Land for Hospital in Marietta,” unknown, undated newspaper article.
Stafford, Bessie. “Antiques and Farm Products Are In ‘Aunt Fanny’s Cabin’, Atlanta Constitution, 27 November 1941.
Unknown author. “Restaurant on the go,” The Atlanta Journal/Constitution, 14 August 1997.
Unknown author. “Soap Dishes, Gingerbread, Fly Catchers, Country Butter and Antiques. . .,” The Atlanta Journal, January 11, 1942.
Unknown author. “Aunt Fanny” Williams Passes,” The Marietta Daily Journal, 6 November 1949.
Unknown author. “Fanny Williams, Aged Negro, Dies,” The Atlanta Constitution, 7 November 1949.
Woolcock, Obiz F. “Mrs. Fanny Williams, of Cabin Fame, Dies at Smyrna Saturday,” The Atlanta Daily World, 6 November 1949.
U. S. Census, 1860-1930, Baldwin, Fulton, and Cobb County, Georgia.
![]()
|
|---|
